Vendita
Milano Navigli
MILANO (MI)
- ZONA Ascanio Sforza
€ 395.000
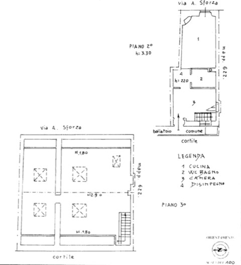
Nel cuore pulsante della città, con tutti i suoi locali, adiacenze NABA, vendesi, in stabile di ringhiera vecchia Milano, appartamento al secondo piano composto da soggiorno cucina camera e bagno. Con collegamento interno si accede a mansarda agibile non abitabile di generosa metratura dove attualmente vi è un ambiente open space ed una seconda camera. l'immobile, caratteristico, ha soffitti con travi a vista, necessità di un restauro potenzialmente conservativo.
Ulteriori info o documentazione in studio. Libero subito.
Ulteriori info o documentazione in studio. Libero subito.
Contratto Vendita
Rif Navigli1
Prezzo € 395.000
Provincia Milano
Comune Milano
Zona Ascanio Sforza
Indirizzo Via Evangelista Torricelli 30">
Vani 4
Camere 2
Bagni 1
Classe energetica
Non indicata
Riscaldamento autonomo
Condizioni da ristrutturare
Spese condominiali € 150
Anno di costruzione 1900
Cucina a vista
Consistenze
| Descrizione | Superficie | Sup. comm. |
|---|---|---|
| Principali | ||
| Immobile - 2° piano | 45 Mq | 45 Mqc |
| Accessorie | ||
| Mansarda - 3° piano | 90 Mq | 90 Mqc |
| Totale | 135 Mqc | |


















Zoom della mappa
Apri con:
Apple Maps
Google Maps
Waze
Apri la mappa






